Description
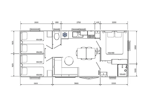
Ce mobil-home d’occasion TRIGANO EVOLUTION de 2018, « assez neuf », est équipé de 3 chambres. Une chambre parentale avec un lit double, des tables de chevet fixes, un vide-poches au dessus du lit, des placards de rangement, des stores occultants et moustiquaires dans toutes les chambres et d’épais rideaux aux fenêtres.
Son petit plus, un toit de tuiles à double pente qui ajoute du charme à l’extérieur du mobil-home.
ÉQUIPEMENT:
Cuisinière 4 feux gaz Chauffe-
eau gaz
Réfrigérateur avec congélateur
Plan de travail
Nombreux placards
Combinaison store occultant et moustiquaire dans les chambres
Lavabo de la salle de bain
Climatisation réversible
LARGEUR : 4M
LONGUEUR : 9M
SURFACE : 36M²





Avis
Il n’y a pas encore d’avis.